ASST Valle Olona annuncia alcuni importanti cambiamenti riguardanti i servizi forniti dal Distretto di Somma Lombardo sito in Via Fuser.
L’edificio, che ospiterà la Casa di Comunità e l’Ospedale di Comunità, sarà infatti sottoposto a cospicui interventi di riqualificazione, con inizio dei lavori a gennaio 2024 e riapertura prevista entro il primo trimestre del 2026.
I provvedimenti di ristrutturazione prevedono la realizzazione di un nuovo blocco scala e l’installazione di un ascensore a servizio dell’Ospedale di Comunità, la riqualificazione energetica e degli impianti, la realizzazione di reti di gas medicali a servizio ODC, oltre al refresh completo degli ambienti interni.
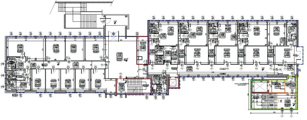
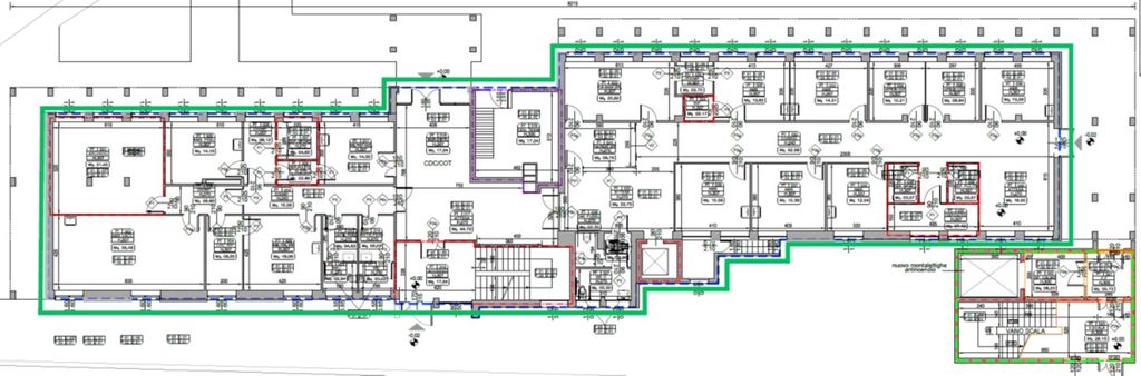
Il piano terra del Distretto di Via Fuser accoglierà il PUA, ambulatori di continuità assistenziale, ambulatori polispecialistici e di Medici di Medicina Generale, oltre agli uffici della Centrale Operativa Territoriale.
Al primo piano saranno collocati gli uffici amministrativi di Distretto (scelta e revoca, certificazioni medico legali/patenti, protesica, ADI, ecc.), alcune sale riunioni, le palestre per la riabilitazione motoria e altri ambulatori polispecialistici e di Medici di Medicina Generale.
Il secondo piano sarà invece dedicato all’Ospedale di Comunità che disporrà di 20 posti letto di degenza, 9 camere da 2 posti letto, 2 camere da 1 post letto e locali di servizio al reparto.
“Per consentire l’inizio dei lavori di ristrutturazione finanziati dalla Missione Salute del PNRR i servizi attualmente presenti presso il Distretto di Somma Lombardo saranno trasferiti in altre sedi - spiega Claudio Iametti, Direttore Socio-Sanitario Distretto di Gallarate - A parte il servizio di Medicina Legale e l’attività certificativa, che sono già stati spostati presso la Casa di Comunità di Lonate Pozzolo nel mese di novembre, dal 10 al 15 gennaio gli utenti che avranno necessità di avvalersi dei servizi ADI, protesica, scelta e revoca, convenzioni, segreteria ed esenzioni dovranno recarsi presso la Casa di Comunità di Lonate Pozzolo”.
Per accedere al servizio di Assistenza Domiciliare Integrata, disponibile lunedì, martedì e giovedì dalle ore 8.30 alle ore 12.00, è necessario fissare un appuntamento.
Il servizio di Protesica è accessibile, previo appuntamento, nelle giornate di lunedì, martedì, mercoledì e venerdì, dalle ore 10.30 alle ore 12.00.
Infine, il servizio di scelta/revoca ed esenzioni è disponibile su appuntamento nei giorni di lunedì, martedì, mercoledì e venerdì dalle ore 8.30 alle ore 11.30.
I numeri da contattare per fissare gli appuntamenti sono: 0331.300055 o 0331.300024.

















