È stato consegnato dallo studio tecnico incaricato il progetto esecutivo dell'Ospedale di Comunità di Luino.
L'intervento prevede lavori per oltre 1,5 milioni euro, a fronte di un quadro economico complessivo di 2,2 milioni di euro.
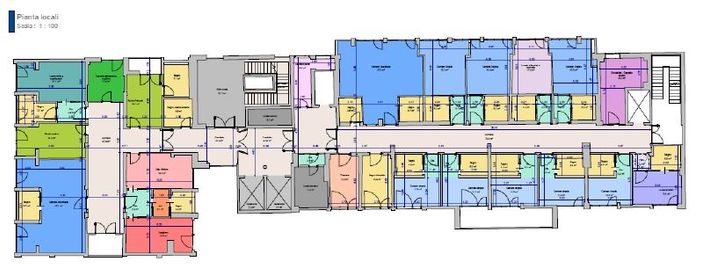
L'Ospedale di Comunità avrà sede al quinto piano del Padiglione centrale, reso nuovamente agibile in seguito ai lavori di rifacimento della copertura.
L'intervento comporterà la completa ristrutturazione del piano, che potrà così ospitare 20 posti letto di degenza, di cui uno dedicato a pazienti infettivi e pertanto in isolamento. Il piano sarà totalmente indipendente dal punto di vista impiantistico rispetto al resto della struttura, al fine di garantire le condizioni ambientali e microclimatiche specifiche per la particolare tipologia di degenti. Inoltre, tutti i locali saranno predisposti in modo da ridurre al minimo eventuali interventi di riconversione e potenziamento dei posti letto in caso di emergenza pandemica.
Terminato il processo di verifica e validazione del progetto, si procederà con l'affidamento delle opere, il cui inizio è previsto entro il mese di aprile, per arrivare alla consegna del reparto a fine 2023.



